[PROPOSITIONS] - GRÄBNER + HANSEN - STUDENT WORK
Jake Brown, Ali Fahmy, Abdallah Kamhawi, Elliot Smithberger
“Social Corridors”
[PROPOSITIONS] - GRÄBNER + HANSEN - STUDENT WORK
Jake Brown, Ali Fahmy, Abdallah Kamhawi, Elliot Smithberger
“Social Corridors”
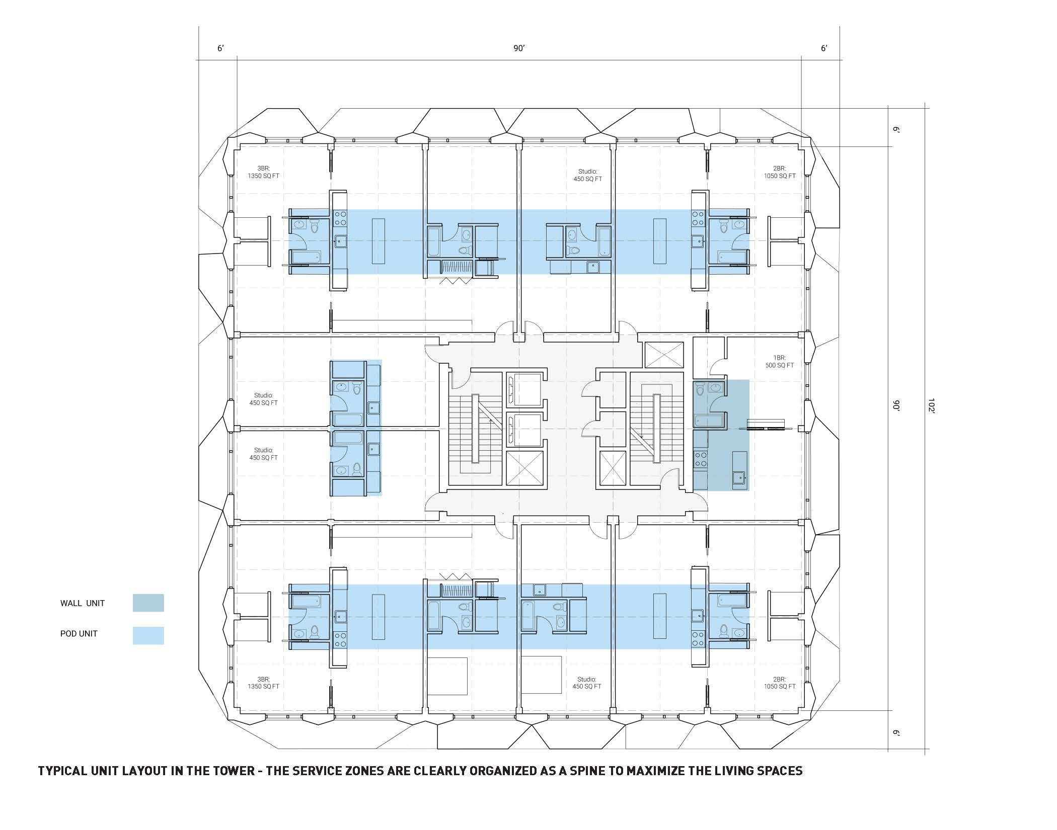
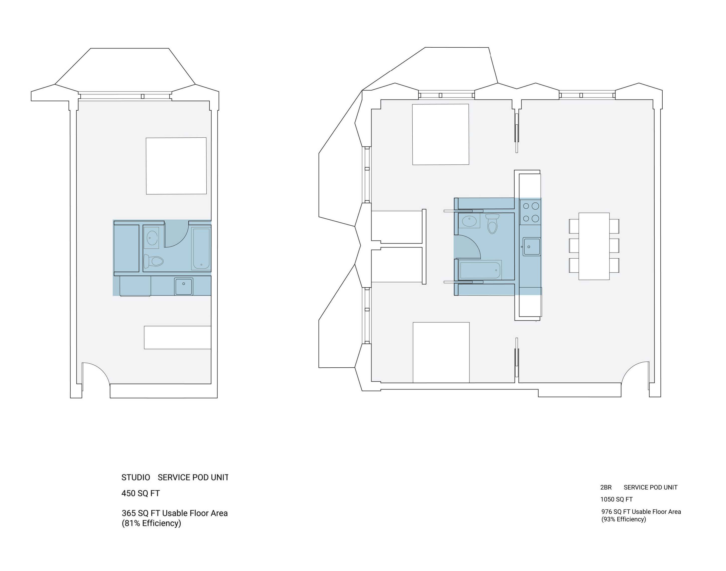
Social Corridors responds to detroit's urgent need for affordable housing, urban greening, and sustainable development. Anchoring the project is a corridor of lush public spaces, a human-scale, walkable network that fosters community and active connection to historic Detroit. Surrounding and mediating the greenway is a mix of high and medium-density living options that encourage social diversity and economic appeal. This synergistic relationship ultimately acts as a model for sustainable development, prioritizing climate-responsive design, passive energy use, and ecological diversity for Detroit's greener urban future.
![]()
![]()
![]()
![]()
![]()
![]()
![]()
![]()
![]()
![]()
![]()
![]()
![]()
![]()
![]()
![]()
![]()
![]()


















